這次分享的是 海和云庭140m2 軟裝設計分析,
內容主要包括戶型分析、平面布局分析和空間功能解析。
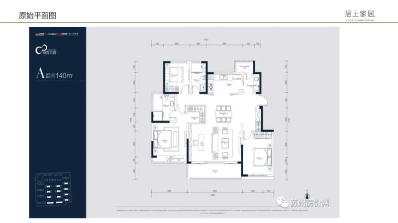
項目概況

戶型為三室兩廳兩衛(不包含洗衣房)
精裝房設計考慮統一的交付性,硬裝存在固定性儲物相對不完善。
在空間布局上設計較為單調,缺乏個性化需求標準。
并且沒有實現動靜分離,將空間完整的劃分開。
門廳&過道 分析:
優點:
1、門廳預留了鞋柜位置,可以根據實際規劃玄關;
2、門廳空間、視線很開闊。
3、預留了洗衣房位置。
缺點:
1、過道較長,利用率不高;
2、沒有獨立的門廳位置。

客餐廳&陽臺分析:
優點:
1、南北通透、視野開闊、采光好;
2、空間比例適中,居住比較舒適并且通風好;
3、雙陽臺。
缺點:
1、餐廳空間需要借助長走廊;
2、客餐廳鏈接有轉角,室內尖角過多;
3、缺少儲物空間。
臥室分析:
優點:
臥室空間平整,滿足功能使用,并且采光通風效果好。
缺點:
北臥室采光稍差,面積稍小。
空間功能分析

***種方案:
首先是 門廳,交付時預留了位置,選擇在進門左側放置定制鞋柜,滿足日常的出門拿物換鞋需求;
客廳交付時只有簡單的墻紙和吊頂,因為客廳開間稍大一些,在滿足一家多口人需求的前提下,選擇多人位的L型沙發;并做開放式的書房,與客廳空間功能分開,但是又形成回游型動線,做整墻的書架,增加收納。
餐廳借助門廳長走廊,放置六人位的圓桌,原始布局餐廳位置稍小,所以沒有收納的區域,利用西墻增加收納設置餐邊柜,作為廚房區域收納的補充或者當做酒柜也是極好的。

第二種方案:
門廳 相比于***種方案,與其他空間做了隔斷,可以用收納柜、柵欄、鐵藝鏤空或者屏風等方法做隔斷。想客廳通透又不想進門就看到,運用一道隔斷來“遮蔽”視線,化解“一覽無遺”的尷尬,避免對隱私的煩惱。
客廳 位置沙發背部作休閑娛樂區,可以放置主人喜愛的鋼琴或者其他的愛好物件、樂器等,將采光通風都不太好的 北臥室 改造成多功能房間,可以臨時當做客房,也可以當做書房使用。

對于整體空間,一定要有主次之分(如上圖),整個空間一定以客廳、門廳、餐廳,同時包括主臥作為整體空間的 主要空間,當然使用頻率相對更高,家具更強調品質和美觀,同時具備舒適性,便于打理。
次要空間 主要有稍小的南次臥室、衣帽間和北面的房間,這方面更注重性價比與裝飾性。

可以看出,以常規布局統籌出來家具、整體定制柜、窗簾、地毯、燈具等需要的數量;
收納方面,也有做統籌儲物量,相對較多,每個家庭的整潔度主要取決于家里的收納做的是否合理。居家生活,建議收納越多越好,結合每家每戶的實際情況,會給到一些合理性的建議。
軟裝風格定位



在當下的時代,我們面對生活生活節奏較快,面對生活和工作有著雙重的壓力。于是,簡約的生活方式成為一種新的時尚追求,它用***少的裝飾和物品,更多的關注人和生活,這也是為什么大家越來愿意選擇現代簡約風格 作為居家的設計風格。
現代風格的更多的是關注人本身的需求,避免不必要的裝飾。但并不意味著對生活品質的要求低,反而追求的是更加精致,自然,舒適的生活方式。
在這個軟裝設計定位中,設計師以柔和的暖灰色為主色調,黑白原木系與木飾貫穿于整個家居空間,以享受簡單的設計帶來的純凈與雅致,力求空間功能的***大化,形成一個有機的、自然主義的現代化生活空間。
軟裝設計意向圖
· 玄關 ·
因為本身房子交付是沒有單獨的門廳位置,客餐廳空間也是共享的,所以在玄關處加以隔斷設計,可以讓整體的空間感都有所加強。
考慮功能性。以柜子做隔斷,既劃分空間,又兼顧收納整理,漂亮又實用。
· 客廳 ·



當沒有單獨書房的前提下,一般會選擇做 客廳+書房一體化 的設計,用書桌當做隔斷,讓整個房間看上去更和諧。不僅提高了客廳的檔次感,還能一屋兩用。
或者根據主人的興趣愛好,將休閑娛樂區與客廳一體化,這樣動靜分離,彼此陪伴也很溫馨。
可以做嵌入式的收納柜設計,不僅滿足日常書籍的擺放,開放格和閉合式相結合,既增加了收納也能擺放一些裝飾物。

客廳窗簾的顏色***好從沙發花紋中選取,淺色調、透光性強的薄窗簾布料為好,能夠營造出一種莊重簡潔、大方明亮的視覺效果。
· 餐廳 ·



餐廳 延續現代簡約風格,餐桌可以選擇不同的材質來裝飾餐廳,不同的材質其實就會體現出不一樣的氛圍,比如大理石更偏剛硬,木質更偏柔軟,玻璃更偏通透,包括像巖板更偏硬朗,可以根據性格的喜好想要的空間感覺。
餐桌旁放置餐邊柜,可以考慮定制美觀的餐邊柜,日常運用的家用小電器,可以在餐邊柜上更好的操作,同時,餐邊柜中可以收納一些東西,比如水杯、茶葉等,甚至是家中日常使用的藥物也可以進行收納。
· 主臥 ·



主臥 交付時帶有飄窗,可以將飄窗位置利用起來,改造成一個mini的學習區,背景墻按照風格和喜好做硬包,在床尾設立斗柜和化妝臺,滿足女主人的日常需求,因為主臥帶衣帽間,所以收納已經足夠了,主要以裝飾和體驗感為主。
· 衣帽間 ·


房子交付時有 衣帽間,沒有沒有衣柜只有門板。所以在改造時需要合理的去規劃,同時結合每個區域的實際功能,可以做薄的柜子,使用起來也會更方便,這樣需要和設計師更深入的溝通,如何去設計那樣的區域。
整個空間的衣帽收納,首先應該結合業主的工作生活習慣,同時根據身高做個性化的定制設計,區分開長短衣物、包包、帽子、皮帶等區域日常收納的習慣。
· 南次臥 ·


長輩房 以簡約大氣為主,隨著年紀的增長,生活需求是方便安全為主,以簡單的裝飾畫為背景或者做簡單軟包,整個空間顯得溫馨一些,放置床頭柜燈方便起夜,按需要增加收納即可。
· 北臥室 ·


兒童房 主要以學習空間為主,用軟裝飾品來區分性別,如果業主孩子年紀較小也可以將這個房間當做親子互動區,小孩子都比較愛創造,那么可以設計一面黑板墻或者積木墻用來“亂涂亂畫”。

北臥室一般空間稍小,可以做榻榻米并設置書桌柜,實現很多功能,比如桌子可以替代寫字臺、電腦桌、化妝臺、床頭柜等等,柜子可以是書柜、衣柜、置物柜等等,各種功能組合都可以,能適應各種需求。并且榻榻米既可以滿足居住需求也可以得到更多的收納空間。
· 洗衣間·

洗衣間 需要實現的功能是機洗、手洗、收納和晾曬,不同的人對洗衣房有不同的要求,需要把空間合理的設計。
· 陽臺 ·

因為有單獨的洗衣房,陽臺不再只是一個“晾曬區域”,所以 陽臺 可做休閑區來使用,可以放置飲茶的餐桌餐椅,也可以種植綠植花花草草,營造輕松的氛圍。
在陽臺的設計上,大家而是當成“小客廳”、“小書房”、“小花園”等定位來裝修。
整體預算和施工進度

軟裝設計搭配包括空間布局、飾品類型、色彩搭配等多方面,軟裝風格彰顯著主人的性格特點或是精神追求,軟裝搭配是它表現方式之一。
設計,是為了營造出適合居住者的生活方式,軟裝就是為了讓居住者使用感受更加舒適。
上圖是大概軟裝設計所包括的類目和價值占比,現在精裝房越來越多,而軟裝設計師就是是從整體上綜合策劃裝飾裝修設計方案,體現出居住者的個性品位。